| NIVEAU | PIÈCE | SURFACE |
Maison de ville
SAINT-SULPICE-LA-POINTE (81370)
- 213 m²
- 7 pièce(s)
- 4 chambre(s)
- 361 m²
À 2 km de Saint-Sulpice et de ses commodités et moins de 10 min de l’autoroute A68, cette spacieuse maison de village offre de beaux volumes et un cadre très agréable pour accueillir une famille.
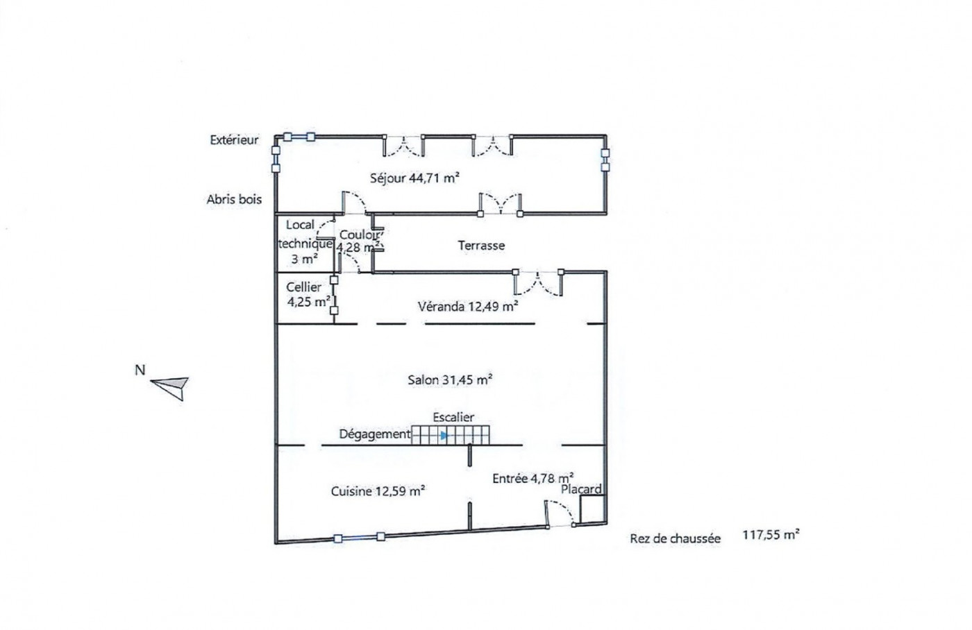
Au rez-de-chaussée, un espace de vie de 117 m² réunit cuisine, salon, patio et séjour climatisé avec poêle. L’ensemble s’ouvre sur une terrasse sans vis-à-vis, au calme, dans un jardin entièrement clos et piscinable.
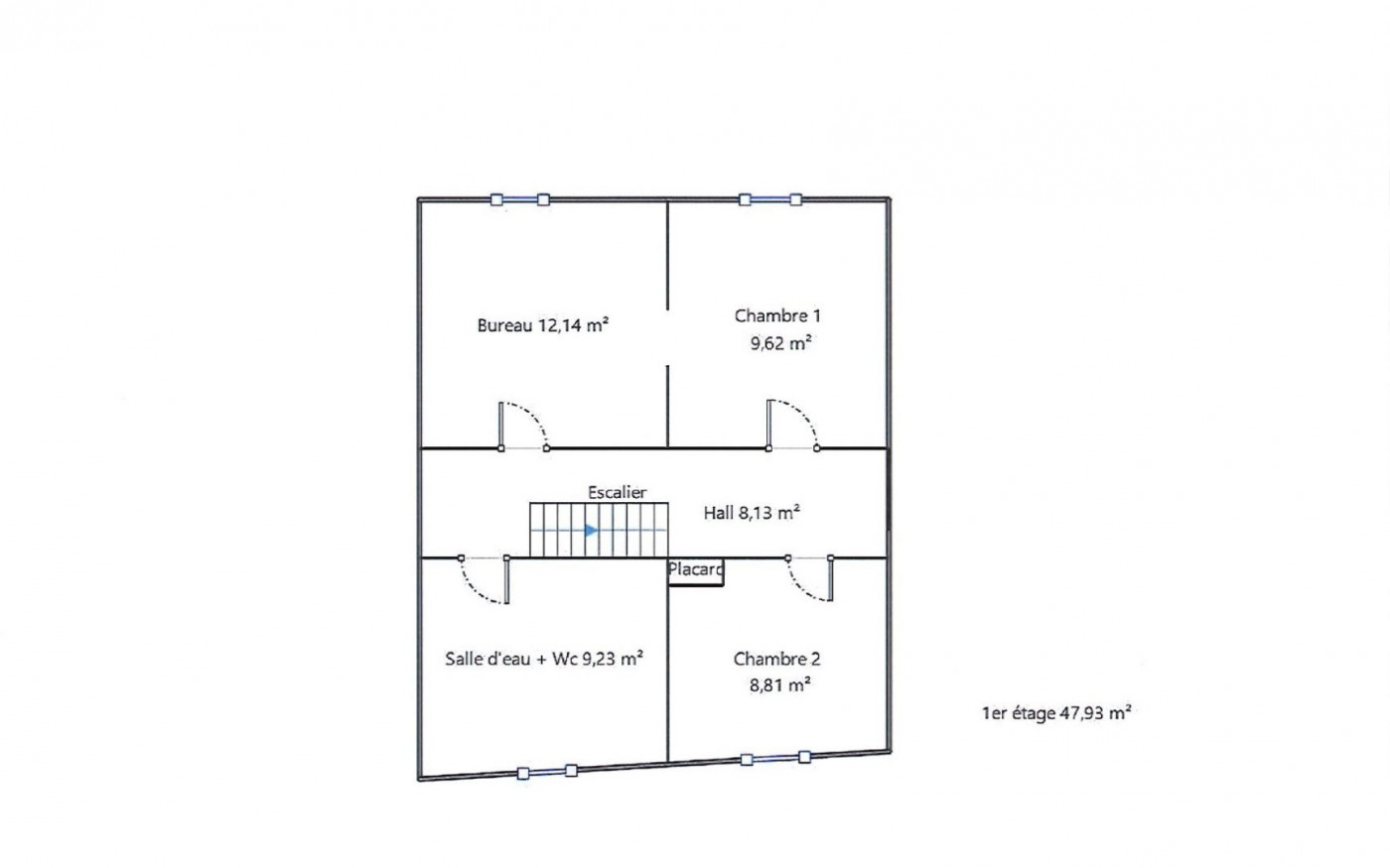
À l’étage, deux chambres partagent une salle de bains. L’une d’elles donne accès à une pièce supplémentaire, idéale pour une troisième chambre ou un espace de jeux.
Le dernier niveau de 48 m² est dédié aux parents. Une grande chambre climatisée, un dressing, une salle d’eau et des toilettes séparées composent cet étage traversant et lumineux.
Pour plus d’informations ou pour découvrir ce lieu plein de charme, contactez-nous au 05 63 41 35 88.
Prix TTC et Honoraires à charge vendeur TTC
* Honoraires charge vendeur.
Diagnostics de performance énergétique

Montant estimé des dépenses annuelles d'énergie pour un usage standard: entre 2 710,00€ et 3 760,00€ par an.Prix moyens des énergies indexés sur les années 2021, 2022 et 2023 (abonnement compris)
À proximité de ce bien ...
cette annonce à un ami
Veuillez réessayer à nouveau






































