| NIVEAU | PIÈCE | SURFACE |
Maison
VILLEMUR-SUR-TARN (31340)
- 138 m²
- 4 pièce(s)
- 2 chambre(s)
- 443 m²
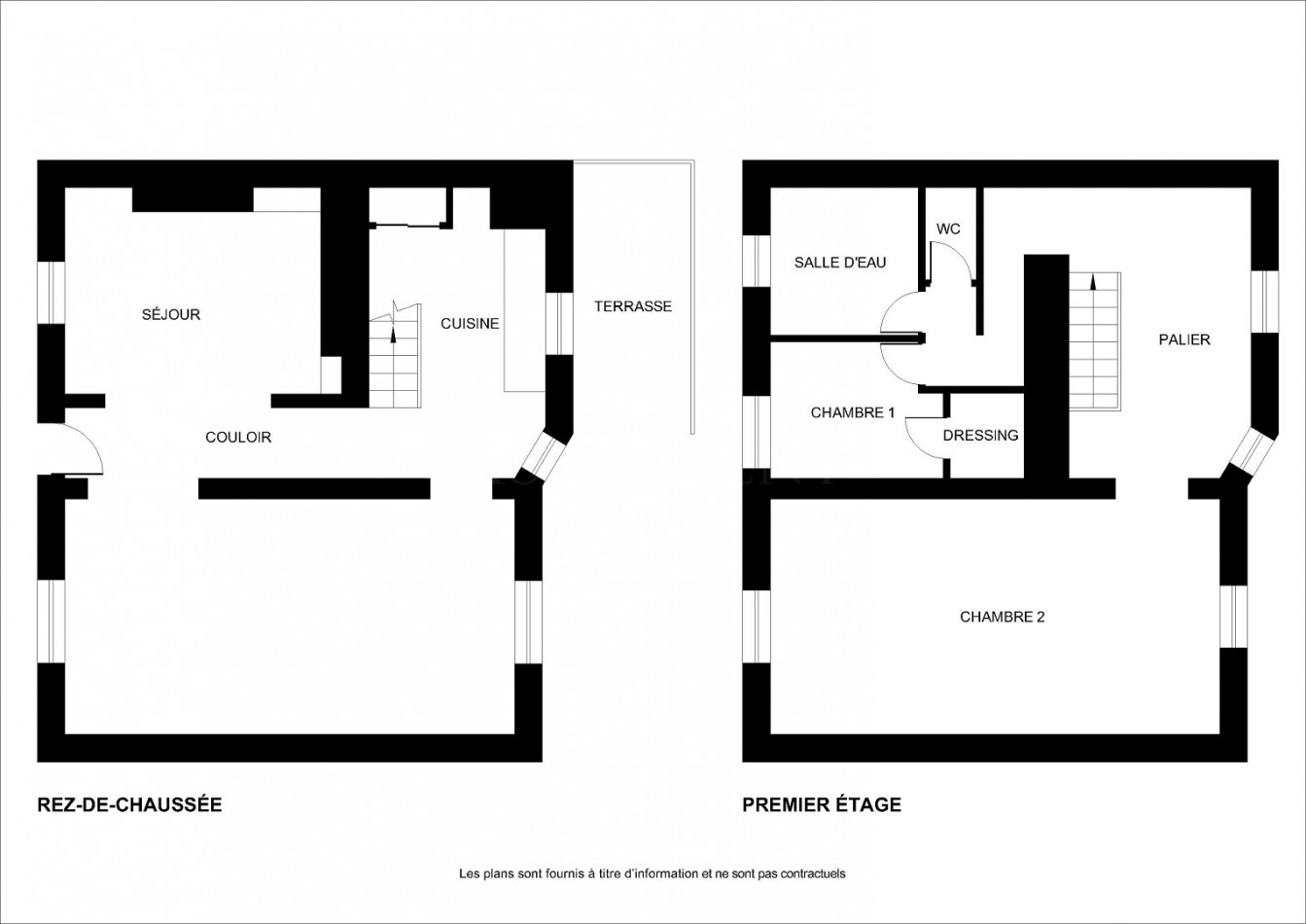
EXCLUSIVITE Dans une commune proche de Bessières, en fond d'impasse dans un secteur calme, cette charmante maison de village vous séduira par ses beaux volumes, son jardin sans vis-à-vis et ses annexes, rares sur le secteur. Nous y entrons par un couloir central agrémenté par une cheminée insert à double paroi vitrée qui réchauffe d'un côté un salon douillet, de l'autre un grand séjour traversant. La cuisine dînatoire, aménagée et équipée de son pôle de cuisson, donne accès à une jolie terrasse sur jardin. A l'étage, un grand palier à office actuel de bureau et salon, dessert 2 chambres confortables dont une avec mezzanine, l'autre avec dressing, une salle d'eau et un toilette séparé. A l'extérieur, la terrasse est agrémentée d'une jolie dépendance et d'un jardin engazonné et arboré de 210m2, au calme et sans vis-à-vis. Enfin, côté entrée, un ancien hangar de 35m2 fait office de carport et donne accès à un deuxième jardinet de 60m2. Véritable opportunité sur le secteur, n'hésitez pas à nous contacter pour plus de renseignements ! Honoraires TTC charge vendeur Agent Commercial VOTRE AGENCE DE BESSIERES - Plus d'informations au 05 61 58 18 67 réf.4821
* Honoraires charge vendeur.
Diagnostics de performance énergétique

Montant estimé des dépenses annuelles d'énergie pour un usage standard: entre 2 096,00€ et 2 836,00€ par an.Prix moyens des énergies indexés sur les années 2021, 2022 et 2023 (abonnement compris)
À proximité de ce bien ...
cette annonce à un ami
Veuillez réessayer à nouveau








































